Apartmento. Obra nueva Orihuela Costa. Alicante

ref: NB-72336
469.000€

Apartmento. Obra nueva Orihuela Costa. Alicante

Visión general

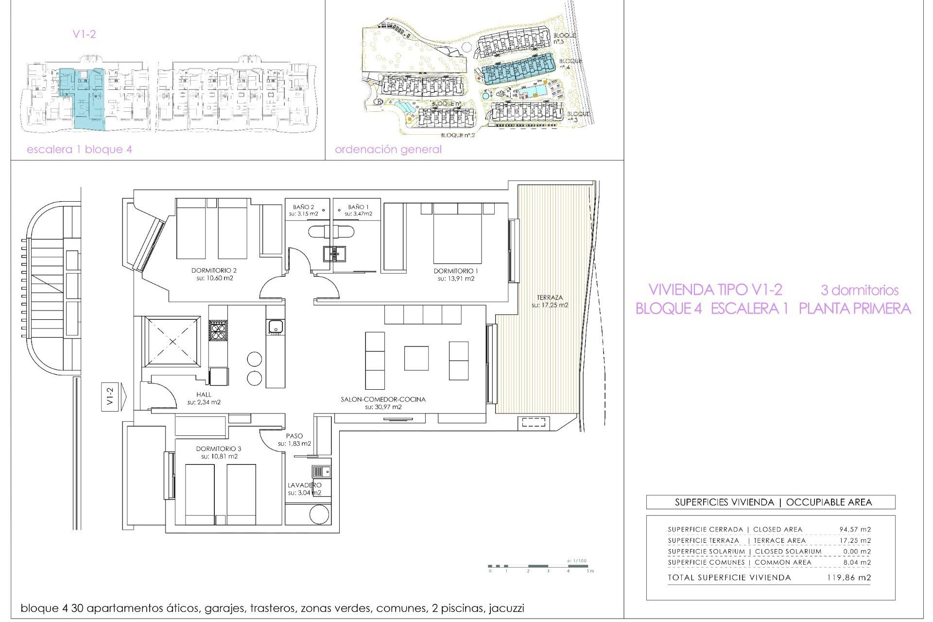
  • metros 94m2
  • Habitaciones 3
  • Baños 2
  • Piscina
Habitaciones: 3
Baños: 2
Construidos: 94m2
Útiles: 84m2
Piscina:
Distancia a la playa: 500 Mts.
Storage / Trastero
Elevator/Lift
Communal Pool
Gated
Number of Parking Spaces: 1
Near Schools
Near Commercial Center
Near Bus Route
Location: Coastal, Urbanisation
Double Bedrooms: 3
Terrace: 17 Msq.
Near Trees
Air Conditioning: Pre-Installed
Beach: 500 Meters
Useable Build Space: 84 Msq.
Parking - Space

Descripción

RESIDENCIAL DE OBRA NUEVA EN PLAYA FLAMENCA !!!

Localización

We Are Homes Realizar una consulta

Responsable del tratamiento: We Are Homes, Finalidad del tratamiento: Gestión y control de los servicios ofrecidos a través de la página Web de Servicios inmobiliarios, Envío de información a traves de newsletter y otros, Legitimación: Por consentimiento, Destinatarios: No se cederan los datos, salvo para elaborar contabilidad, Derechos de las personas interesadas: Acceder, rectificar y suprimir los datos, solicitar la portabilidad de los mismos, oponerse altratamiento y solicitar la limitación de éste, Procedencia de los datos: El Propio interesado, Información Adicional: Puede consultarse la información adicional y detallada sobre protección de datos Aquí.

WhatsApp