Modernas villas de una sola planta con piscina privada y solárium en El Jimenado, Murcia
Vida mediterránea contemporánea con privacidad y comodidad
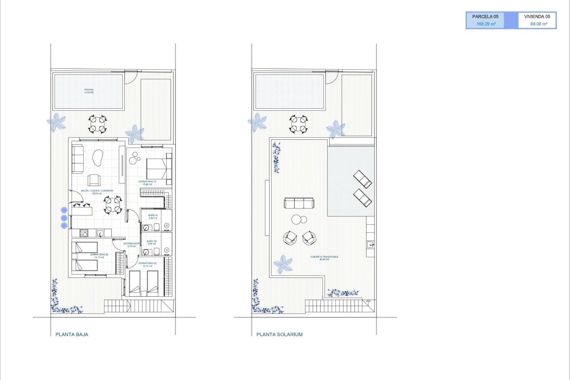
Esta exclusiva promoción de 6 villas independientes está diseñada para ofrecer la máxima privacidad, comodidad y vida al aire libre. Situadas en El Jimenado, una tranquila zona residencial perteneciente a Torrepacheco, en la región de Murcia, estas elegantes viviendas de una sola planta combinan un diseño moderno con el relajado estilo de vida mediterráneo. Cada villa se encuentra en su propia parcela con jardín privado, piscina, amplias terrazas y aparcamiento en la parcela, lo que le permite disfrutar del sol y de la vida al aire libre durante todo el año.
El Jimenado es conocido por su entorno tranquilo, a la vez que está estratégicamente situado cerca de campos de golf, playas y servicios esenciales, lo que lo hace ideal tanto para vivir de forma permanente como para pasar las vacaciones.
Diseño diáfano y características de alta calidad
Las villas están cuidadosamente diseñadas con una distribución diáfana en la que la cocina totalmente equipada se integra a la perfección con el luminoso salón-comedor. Los grandes ventanales conectan los espacios interiores con las terrazas y la zona de la piscina, creando un flujo natural entre la vida interior y exterior.
Cada propiedad incluye:
Cocina totalmente amueblada con electrodomésticos
Baños con espejo, iluminación y mamparas de ducha
Piscina privada
Plaza de aparcamiento en la parcela
Iluminación interior y exterior incluida, excepto lámparas decorativas
Preinstalación de aire acondicionado por conductos
Cocina de verano en el solárium privado
El diseño de una sola planta garantiza la comodidad y la accesibilidad, mientras que el espacioso solárium de la azotea ofrece una zona adicional para relajarse, entretenerse y disfrutar del sol durante todo el año.
Ubicación tranquila cerca del golf y la costa
El Jimenado ofrece un entorno residencial tranquilo, rodeado de paisajes abiertos y varios complejos de golf de renombre. Al mismo tiempo, está bien conectado con las principales localidades de la zona del Mar Menor y la costa mediterránea.
Playas del Mar Menor 18 km
Playas del mar Mediterráneo 25 km
Roda Golf 9 km
Mar Menor Golf Resort 10 km
La Serena Golf 15 km
Puerto deportivo de Los Alcázares 18 km
Aeropuerto de Murcia Corvera 22 km
Aeropuerto de Alicante 95 km
Ciudad de Cartagena 30 km
Una opción ideal para el estilo de vida y la inversión
Gracias a su diseño moderno, privacidad y excelente ubicación, estas villas son perfectas para aquellos que buscan una vivienda tranquila cerca de campos de golf y del mar, así como para compradores que buscan una inversión con alto potencial de alquiler en la región de Murcia.
Póngase en contacto con nosotros hoy mismo para recibir más información o concertar una visita a estas hermosas villas de nueva construcción en El Jimenado.