Villa. Nowy budynek Fuente Álamo. Murcia

ref: NB-92642
320.000€

Villa. Nowy budynek Fuente Álamo. Murcia

Przegląd

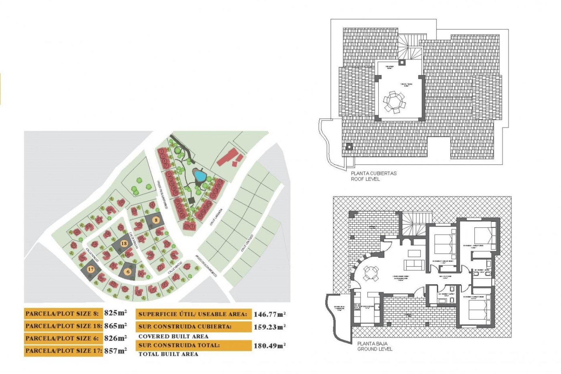
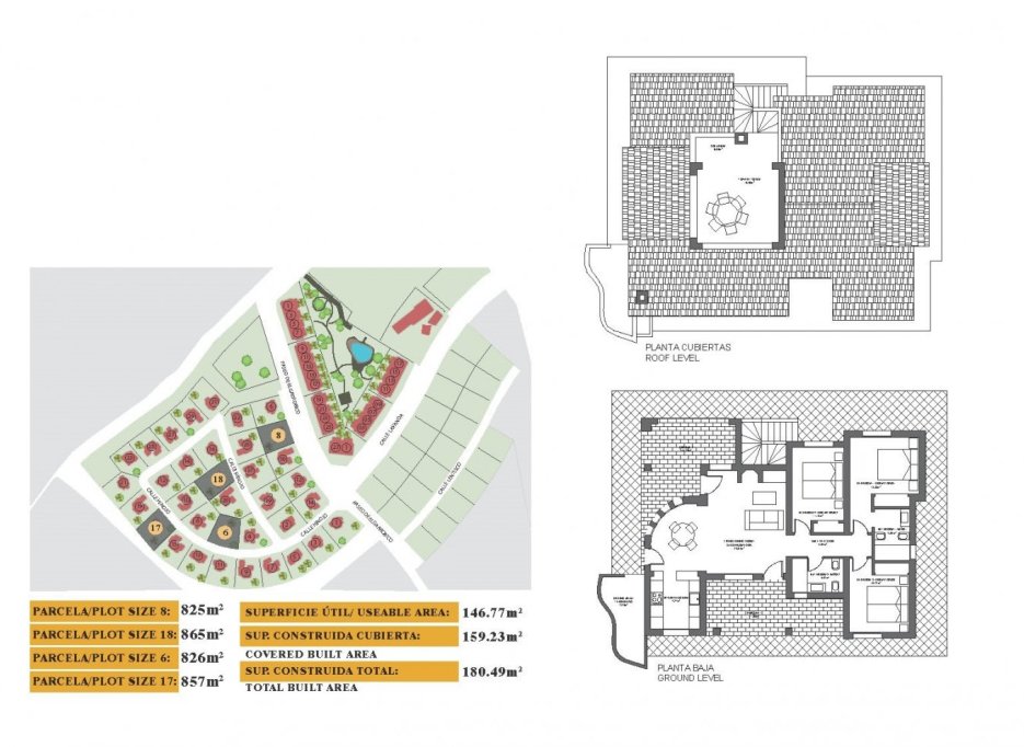
  • liczniki 180m2
  • Działka 850m2
  • Sypialnie 3
  • Łazienki 2
Rok budowy: 0
Termin dostawy: 0000-00-00
Sypialnie: 3
Łazienki: 2
Powierzchnia: 180m2
Przydatne: 144m2
Działka: 850m2
Odległość od plaży: 7500 Mts.
Double Bedrooms: 3
Key Ready
Garden
Air Conditioning: Pre-Installed
Useable Build Space: 144 Msq.
Terrace: 45 Msq.
Location: Rural
Beach: 7500 Meters
Parking - Space
Storage / Trastero
Gated
Solarium: Yes
Number of Parking Spaces: 1

Opis

KLUCZ GOTOWY WILLA W FUENTE ALAMO, MURCIA

Lokalizacja

We Are Homes Złóż zapytanie

Responsable del tratamiento: We Are Homes, Finalidad del tratamiento: Gestión y control de los servicios ofrecidos a través de la página Web de Servicios inmobiliarios, Envío de información a traves de newsletter y otros, Legitimación: Por consentimiento, Destinatarios: No se cederan los datos, salvo para elaborar contabilidad, Derechos de las personas interesadas: Acceder, rectificar y suprimir los datos, solicitar la portabilidad de los mismos, oponerse altratamiento y solicitar la limitación de éste, Procedencia de los datos: El Propio interesado, Información Adicional: Puede consultarse la información adicional y detallada sobre protección de datos Aquí.

WhatsApp