Luksusowa nowa willa z widokiem na morze w Moraira
Doskonała lokalizacja w pobliżu plaży i centrum miasta
Ta luksusowa willa w Moraira jest idealnie położona zaledwie 1,8 km od plaży i tętniącego życiem centrum miasta, oferując idealną równowagę między prywatnością a wygodą. Moraira, urocze nadmorskie miasteczko na Costa Blanca, znane jest z pięknych piaszczystych plaż, krystalicznie czystej wody i śródziemnomorskiego stylu życia. Miasto oferuje szeroki wybór restauracji, barów, supermarketów i tętniącą życiem marinę. Międzynarodowe lotnisko w Alicante znajduje się w odległości około 90 km (1h15) autostradą A7, a lotnisko w Walencji leży w podobnej odległości na północ, co zapewnia łatwy i wygodny dojazd.
Nowoczesny design i przestronne wnętrza
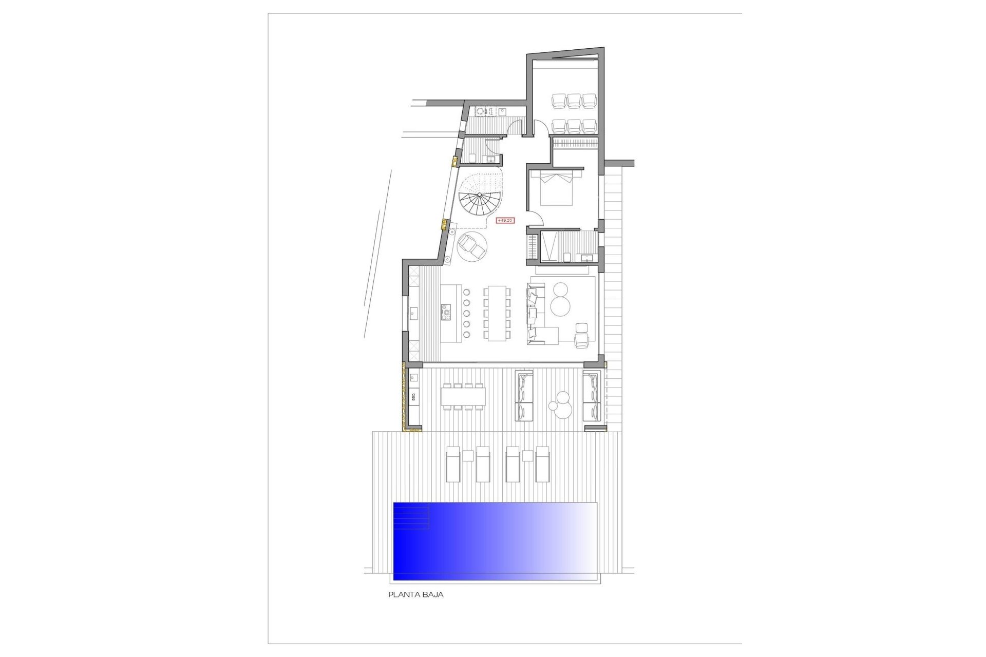
Willa zbudowana na działce o powierzchni 912 m² ma łączną powierzchnię 350 m² na dwóch kondygnacjach. Dom posiada 4 sypialnie z łazienkami oraz toaletę dla gości, wszystkie wykończone materiałami najwyższej jakości. Na parterze znajduje się jasny salon z jadalnią i nowoczesną kuchnią z wyspą. Z tego pomieszczenia duże przesuwane drzwi prowadzą bezpośrednio na taras, letnią kuchnię i prywatny basen. Na tym poziomie znajduje się również sypialnia z łazienką, toaleta dla gości, pralnia i wielofunkcyjne pomieszczenie.
Eleganckie piętro z widokiem na morze
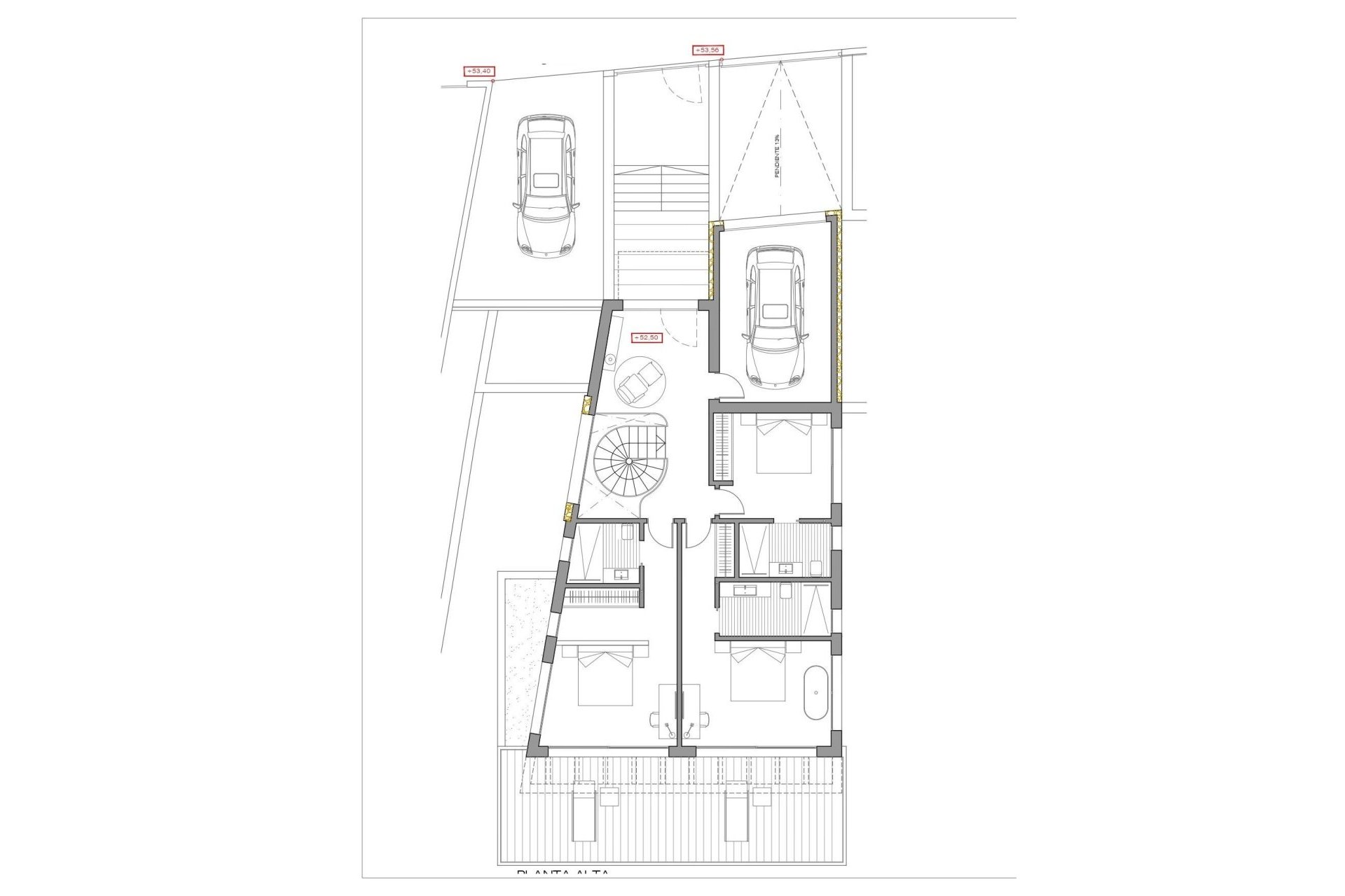
Designerskie schody prowadzą na piętro, na którym znajdują się trzy dodatkowe sypialnie z łazienkami, a także przestronny hol wejściowy i prywatny taras z przepięknym widokiem na morze. Nieruchomość oferuje również garaż, prywatny parking, ogrzewanie podłogowe, klimatyzację, podwójne szyby i wzmocnione drzwi antywłamaniowe, zapewniające maksymalny komfort i spokój ducha.
Śródziemnomorska oaza na świeżym powietrzu
Zewnętrzna część nieruchomości została zaprojektowana jako prywatna oaza, łącząca ogrody krajobrazowe, zadaszone i otwarte tarasy, prywatny basen z prysznicem na świeżym powietrzu oraz miejsce na grilla, idealne do rozrywki. Położenie od strony południowo-wschodniej gwarantuje mnóstwo naturalnego światła przez cały dzień, dzięki czemu każdy zakątek willi jest jasny i przytulny.
Styl życia w Moraira
Moraira słynie z relaksującej, a jednocześnie kosmopolitycznej atmosfery. Rodziny pokochają bezpieczną piaszczystą plażę, a miłośnicy przyrody będą mogli cieszyć się wspaniałymi spacerami wzdłuż wybrzeża z widokiem na Peñón de Ifach w Calpe, oddalonym o zaledwie 12 km. Miłośnicy golfa również znajdą doskonałe pola golfowe w odległości od 10 do 15 km.
Twoja wymarzona willa czeka
Doświadcz luksusowego życia w Moraira dzięki tej ekskluzywnej willi. Skontaktuj się z nami już dziś, aby umówić się na oglądanie i sprawić, że ten śródziemnomorski raj stanie się Twoim nowym domem.
753