Nowa willa w stylu Ibizy z luksusowymi udogodnieniami w Javea
Ekskluzywny śródziemnomorski design w pobliżu plaży El Arenal
Ta wspaniała nowa willa w stylu Ibizy w Javea znajduje się zaledwie 3 km od słynnej plaży El Arenal, jednej z najbardziej tętniących życiem i atrakcyjnych okolic północnego wybrzeża Costa Blanca. Położona w cichej i dobrze skomunikowanej dzielnicy mieszkalnej, nieruchomość oferuje wyjątkowe połączenie elegancji, komfortu i nowoczesnej śródziemnomorskiej architektury. Javea słynie z krystalicznie czystej wody, malowniczych zatoczek, parków przyrodniczych, marin i doskonałych restauracji, co czyni ją bardzo atrakcyjnym miejscem zarówno do życia, jak i do inwestowania.
Elegancki układ wnętrz na dwóch poziomach
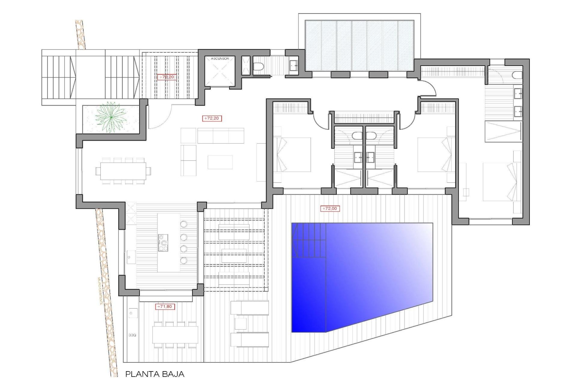
Willa została starannie zaprojektowana, aby zapewnić maksymalny komfort i styl. Na parterze przestronny salon i jadalnia płynnie łączą się z w pełni wyposażoną kuchnią, tworząc jasną i przytulną przestrzeń otwartą. Na tym poziomie znajduje się również winda dla dodatkowej wygody, toaleta dla gości oraz centralny korytarz łączący wszystkie pomieszczenia.
W willi znajdują się dwie sypialnie dwuosobowe z łazienkami oraz imponująca sypialnia główna o dużym rozkładzie, z łazienką i wbudowaną garderobą.
Życie na świeżym powietrzu zaprojektowane z myślą o śródziemnomorskim stylu życia
Przestrzenie zewnętrzne zostały stworzone, aby cieszyć się ciepłym klimatem Javea przez cały rok. Nieruchomość obejmuje dwie eleganckie pergole, jedną przy wejściu, a drugą rozciągającą się od salonu i kuchni w kierunku otwartego tarasu otaczającego prywatny basen o powierzchni 38 m2.
Obok kuchni znajduje się dodatkowy taras z miejscem do grillowania, który stanowi idealne miejsce do spożywania posiłków na świeżym powietrzu i spotkań towarzyskich.
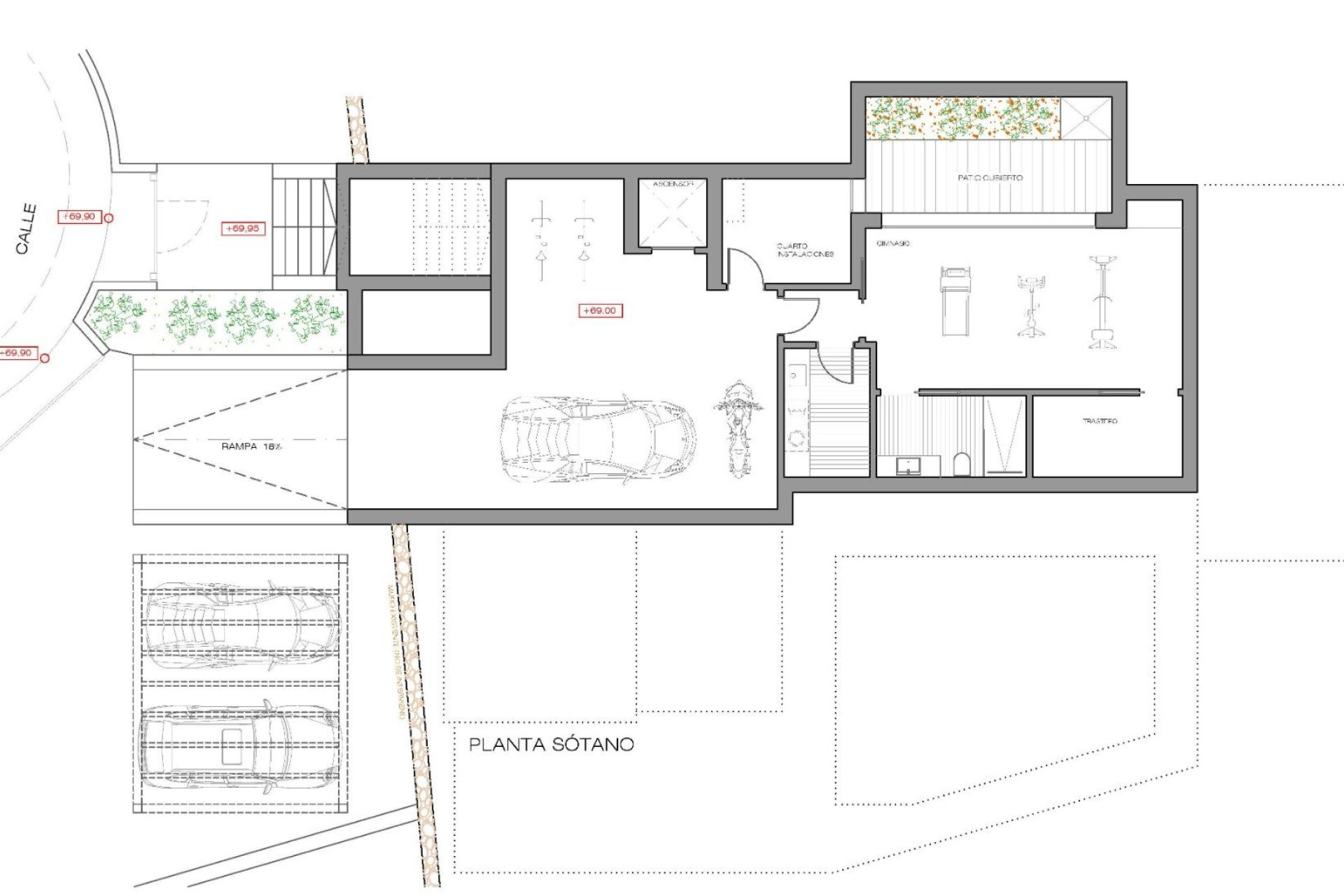
Luksusowa piwnica z wyjątkowymi udogodnieniami
Piwnica łączy w sobie funkcjonalność i luksus, oferując otwarty garaż, windę, pomieszczenie gospodarcze, pralnię, siłownię, zadaszone patio, łazienkę i przestronną powierzchnię magazynową. Piętro to zostało zaprojektowane tak, aby dostosować się do współczesnych potrzeb mieszkaniowych, oferując jednocześnie maksymalną wygodę.
Doskonała lokalizacja w Javea
Javea oferuje wyjątkowe połączenie naturalnego piękna, możliwości spędzania wolnego czasu i wysokiej jakości usług.
Najważniejsze odległości od willi:
Plaża El Arenal 3 km
Port i marina w Javea 7 km
Klub golfowy Javea 3 km
Lotnisko w Alicante 100 km
Lotnisko w Walencji 125 km
Twój śródziemnomorski dom czeka
Niezależnie od tego, czy szukasz stałego miejsca zamieszkania, luksusowego domu wakacyjnego, czy też doskonałej okazji inwestycyjnej, ta willa oferuje wyjątkową jakość i niezrównaną lokalizację. Skontaktuj się z nami już dziś, aby umówić się na oglądanie nieruchomości i odkryć swój nowy dom w Javea.