Bungalowy. Nowy budynek Torrevieja. Alicante

ref: NB-28004
340.000€

Bungalowy. Nowy budynek Torrevieja. Alicante

Przegląd

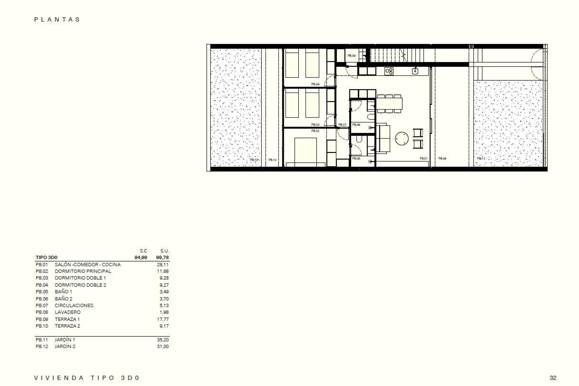
  • liczniki 99m2
  • Działka 76m2
  • Sypialnie 3
  • Łazienki 2
  • Basen Tak
Sypialnie: 3
Łazienki: 2
Powierzchnia: 99m2
Przydatne: 94m2
Działka: 76m2
Basen: Tak
Odległość od plaży: 3500 Mts.
Storage / Trastero
Communal Pool
Gated
Number of Parking Spaces: 1
Near Schools
Near Commercial Center
Location: Coastal, Urbanisation
Double Bedrooms: 3
Garden
Air Conditioning: Pre-Installed
Useable Build Space: 94 Msq.
Terrace: 27 Msq.
Beach: 3500 Meters
Parking - Space

Opis

Nowe apartamenty mieszkalne w Los Balcones, Torrevieja

Lokalizacja

We Are Homes Złóż zapytanie

Responsable del tratamiento: We Are Homes, Finalidad del tratamiento: Gestión y control de los servicios ofrecidos a través de la página Web de Servicios inmobiliarios, Envío de información a traves de newsletter y otros, Legitimación: Por consentimiento, Destinatarios: No se cederan los datos, salvo para elaborar contabilidad, Derechos de las personas interesadas: Acceder, rectificar y suprimir los datos, solicitar la portabilidad de los mismos, oponerse altratamiento y solicitar la limitación de éste, Procedencia de los datos: El Propio interesado, Información Adicional: Puede consultarse la información adicional y detallada sobre protección de datos Aquí.

WhatsApp