Villa. Obra nueva Fuente Álamo. Murcia

ref: NB-19653
242.000€

Visión general

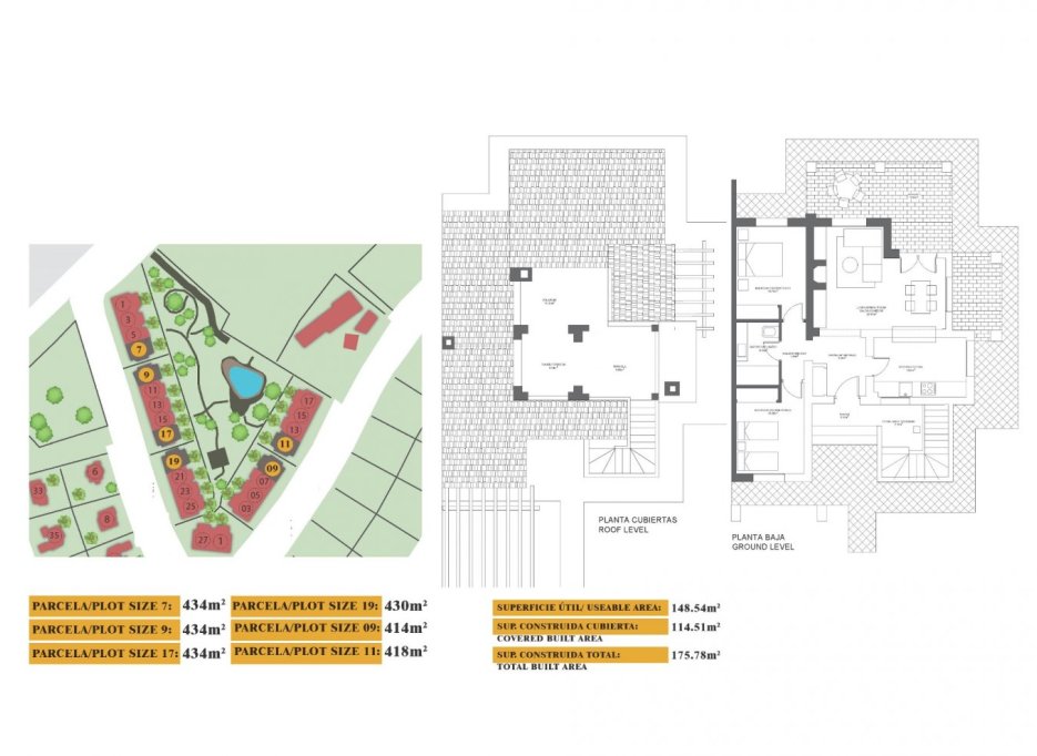
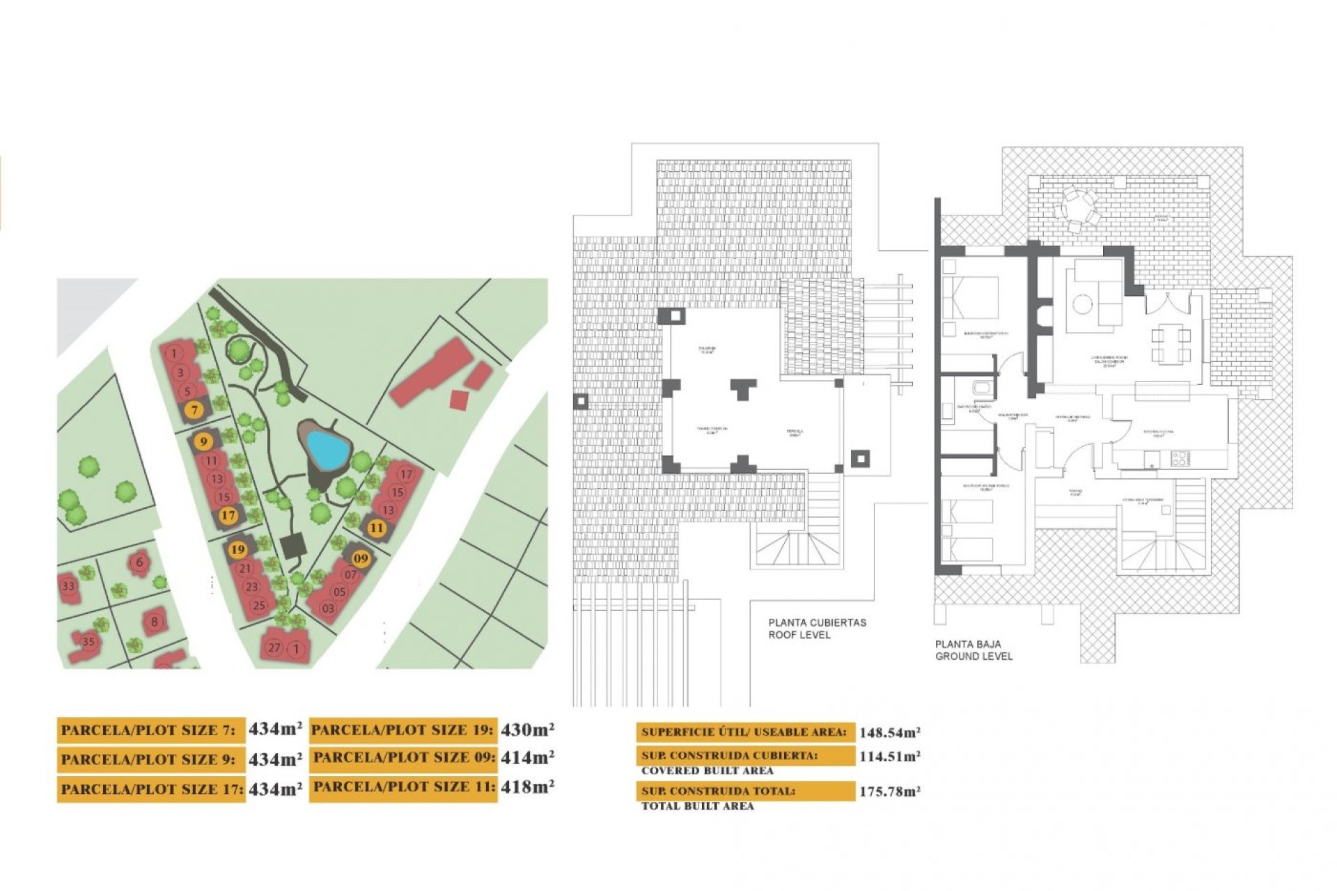
  • metros 175m2
  • Parcela 430m2
  • Habitaciones 2
  • Baños 1
Habitaciones: 2
Baños: 1
Construidos: 175m2
Útiles: 148m2
Parcela: 430m2
Distancia a la playa: 7500 Mts.
Number of Parking Spaces: 1
Double Bedrooms: 2
Key Ready
Garden
Location: Rural, Urbanisation
Air Conditioning: Pre-Installed
Terrace: 45 Msq.
Beach: 7500 Meters
Useable Build Space: 148 Msq.
Parking - Space
Storage / Trastero
Gated

Descripción

PAREADO LLAVE EN MANO EN FUENTE ALAMO, MURCIA

Localización

We Are Homes Realizar una consulta

Responsable del tratamiento: We Are Homes, Finalidad del tratamiento: Gestión y control de los servicios ofrecidos a través de la página Web de Servicios inmobiliarios, Envío de información a traves de newsletter y otros, Legitimación: Por consentimiento, Destinatarios: No se cederan los datos, salvo para elaborar contabilidad, Derechos de las personas interesadas: Acceder, rectificar y suprimir los datos, solicitar la portabilidad de los mismos, oponerse altratamiento y solicitar la limitación de éste, Procedencia de los datos: El Propio interesado, Información Adicional: Puede consultarse la información adicional y detallada sobre protección de datos Aquí.

WhatsApp