Villa. Nowy budynek Fuente Álamo. Murcia

ref: NB-19653
242.000€

Villa. Nowy budynek Fuente Álamo. Murcia

Przegląd

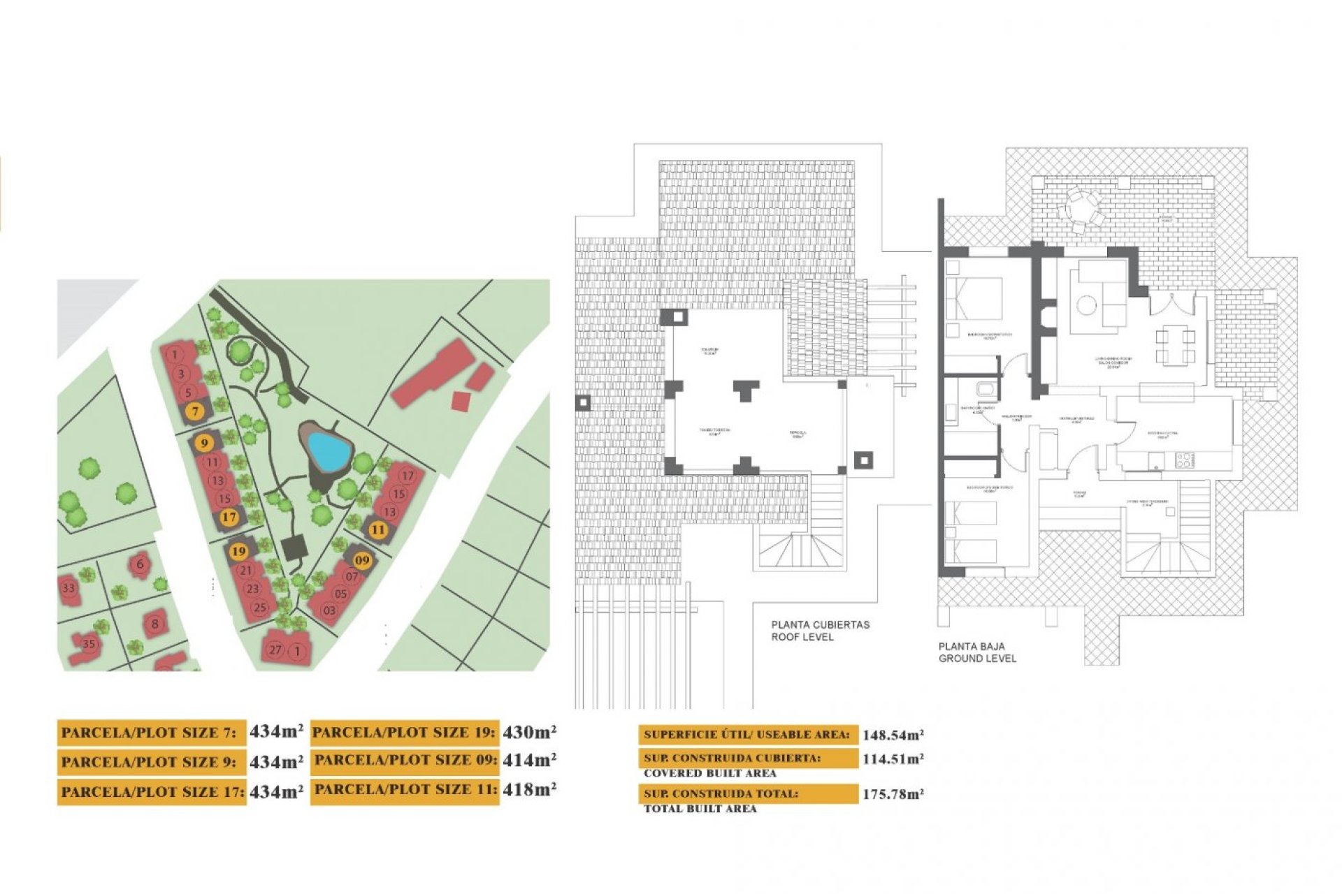
  • liczniki 175m2
  • Działka 430m2
  • Sypialnie 2
  • Łazienki 1
Sypialnie: 2
Łazienki: 1
Powierzchnia: 175m2
Przydatne: 148m2
Działka: 430m2
Odległość od plaży: 7500 Mts.
Number of Parking Spaces: 1
Double Bedrooms: 2
Key Ready
Garden
Location: Rural, Urbanisation
Air Conditioning: Pre-Installed
Terrace: 45 Msq.
Beach: 7500 Meters
Useable Build Space: 148 Msq.
Parking - Space
Storage / Trastero
Gated

Opis

KLUCZ GOTOWY BLIŹNIACZY WILLA W FUENTE ALAMO, MURCIA

Lokalizacja

We Are Homes Złóż zapytanie

Responsable del tratamiento: We Are Homes, Finalidad del tratamiento: Gestión y control de los servicios ofrecidos a través de la página Web de Servicios inmobiliarios, Envío de información a traves de newsletter y otros, Legitimación: Por consentimiento, Destinatarios: No se cederan los datos, salvo para elaborar contabilidad, Derechos de las personas interesadas: Acceder, rectificar y suprimir los datos, solicitar la portabilidad de los mismos, oponerse altratamiento y solicitar la limitación de éste, Procedencia de los datos: El Propio interesado, Información Adicional: Puede consultarse la información adicional y detallada sobre protección de datos Aquí.

WhatsApp